top of page

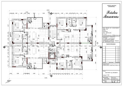
Court 14 consists of 2 and 1 bedroom apartments. It is located in Lakatamia in a quiet neighborhood of the Kkolias Supermarket. The area is considered one of the most privileged in Lakatamia, with easy access to the center or outside of Nicosia.
Energy efficiency A+
Comfortable interiors
Private Parking
Prime
Location
The features of each apartment are:
-
Energy efficiency A+
-
Complete thermal facade system
-
High energy efficiency frames
-
Comfortable interiors
-
Bedroom with private bathroom
-
Large covered balconies
-
High quality ceramics and sanitary ware
-
Provision of photovoltaic system for the apartments
-
Large covered warehouse and parking
-
Smart intercom
-
Peaceful area

The features of each apartment are:
1st FLOOR
2nd FLOOR
3rd FLOOR



Location
DELIVERY
DATE
03/2026
bottom of page
